$662,000
4 Bedrooms ,
3 Bathrooms
Property Description
IMPRESSIVE, CONTEMPORARY RANCH LIVING! Discover unparalleled modern elegance in this stunning ranch-style home, perfectly situated in the vibrant community of Erie, Colorado. Step inside to an expansive open-concept layout that features soaring high ceilings, rich hardwood flooring throughout, and tasteful decorator finishes. This meticulously designed home boasts 4 spacious bedrooms and 3 baths, offering ample comfort and privacy for everyone. The heart of the home is the beautiful kitchen equipped stainless steel appliances plus a large center island with elegant quartz countertops and pantry. Don't miss the home office, gas fireplace and all of the SMART features of this property. The primary suite is a true retreat, featuring a generous layout, a walk-in closet, soaking tub, and double sinks. Don't miss the gorgeous professionally designed basement with a huge rec room big enough for large gatherings and hobbies. Other features include owned solar panels, a fabulous sound system, aGeneral Features
| MLS: 1046589 | Status: Active |
| Listing Office: The Colorado Group | Listing Office Phone: 303-449-2131 |
| Virtual Tour: https://www.homes.com/property/2083-tundra-cir-erie-co/5wmh6t1hezzfy/?dk=ypn28q7tq00x1&tab=1 | Style: One |
| Construction: Brick/Brick Veneer | Bedrooms: 4 |
| Baths: 3 | Cooling: Central Air |
| Heating: Forced Air | Total SqFt: 3,318ft² |
| Finished SqFt: 1,670ft² | Above Ground SqFt: 1,670ft² |
| Acreage: 0.15 acres | Lot Size: 6,637ft² |
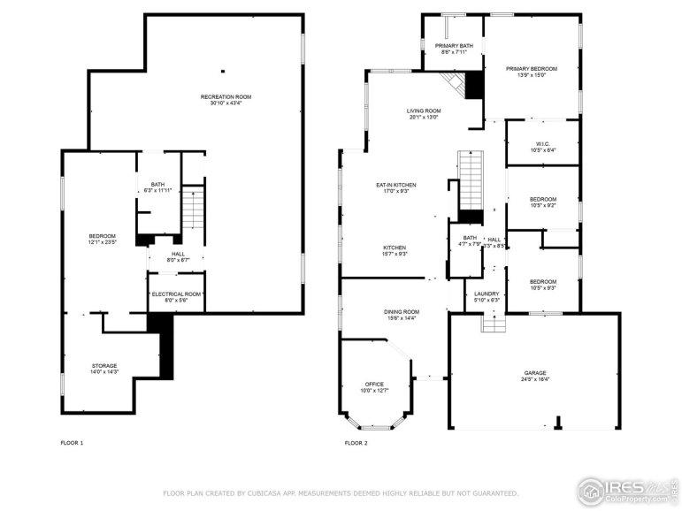
Room Sizes
| Office/Study: 13ft x 10ft | Dining Room: 14ft x 15ft |
| Laundry Room: 6ft x 6ft | Kitchen: 9ft x 32ft |
| Living Room: 13ft x 20ft | Rec Room: 30ft x 43ft |
| Master Bedroom: 14ft x 15ft | Bedroom 2: 9ft x 10ft |
| Bedroom 3: 9ft x 10ft | Bedroom 4: 12ft x 23ft |
School Information
| District: ST Vrain Dist RE 1J |
| Elementary: Black Rock |
| Middle: Erie |
| High: Erie |
Taxes & Fees
| Tax Amount: $6,614 |
| Tax Year: 2024 |
| HOA Fee: $90.00 |
Additional Information
| Fireplaces: Gas |
| Outdoor Features: Patio, Garage Door Opener, , , Lawn Sprinkler System |
| Common Amenities: Clubhouse,Hot Tub,Pool,Playground,Fitness Center,Park,Recreation Room |
| Disabled Access: Main Floor Bath,Main Level Bedroom,Main Level Laundry |
| New Financing: Cash,Conventional,FHA,VA Loan |
| Construction: Brick/Brick Veneer |
| Energy Features: , Window Coverings |
| Utilities: Natural Gas Available,Electricity Available,Cable Available |
